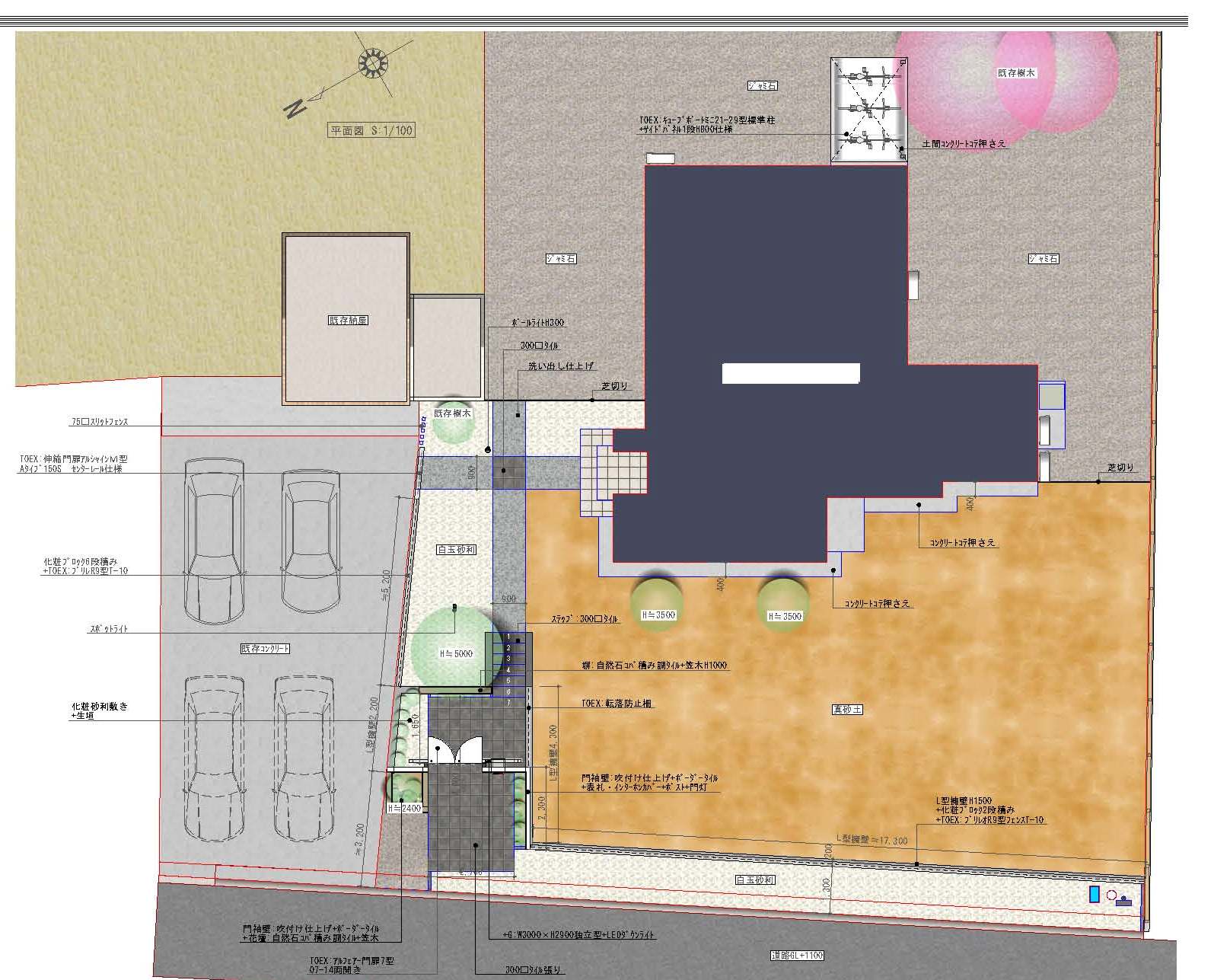
デザインパース集 建物カラーを意識した門周りデザイン 建物設計GLが道路よりも1.2m程下がっています。 門の位置を道路高さ、建物GLに合わせるか悩みましたが、お客様のご要望もあり道路高さに合わせた門周りになっています。 敷地の広さ、建物のボリュームも考慮し4.0mの株立ちシンボルツリーやアーチでボリューム感を出し 白と黒のシンプルな色目で全体をまとめました。 建物、門周りの距離は離れていますが、統一感のあるデザインになっています。