エクステージ

0120-277-468

姫路・太子・赤穂・相生・たつの・高砂・加古川のエクステリア外構工事は施工実績豊富なエクステージにおまかせ下さい。

デザインパース集

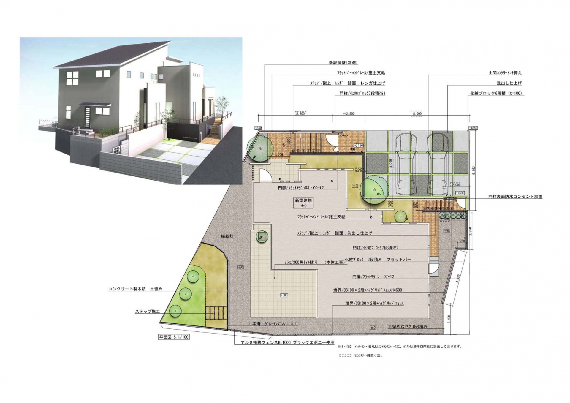
ブラックアンドホワイトエクステリア

一覧へ戻る